Ako tražite luksuzno uređen stan u manjoj zgradi u mirnom okruženju, onda je ovo pravi projekt za vas. Osigurajte svoj mir u urbanoj vili s 4 stana opremljena vrhunskim materijalima.
Ulica Stjepana Fabijančića Jape 72, Velika Gorica
7,45 m2
4,57 m2
11,31 m2
11,33 m2
32,04 m2
7,20 m2
73,90 m2
Trosobni stan S1 neto korisne površine 73,90 m2 koji se nalazi na 1. katu zgrade, a sastoji se od ulaznog hodnika, dnevnog boravka s kuhinjom i blagovaonicom, dvije spavaće sobe, kupaonice s WC-om i natkrivenog balkona. Orijentiran je prema sjeverozapadu i jugozapadu.
7,41 m2
4,96 m2
11,64 m2
11,27 m2
38,95 m2
15,74 m2
4,20 m2
7,52 m2
101,69 m2
Četverosobni stan S2 neto korisne površine 101,69 m2 koji se nalazi na 1. katu zgrade, a sastoji se od ulaznog hodnika, dnevnog boravka s kuhinjom i blagovaonicom, tri spavaće sobe, dvije kupaonice s WC-om i natkrivenog balkona. Orijentiran je prema sjeverozapadu i sjeveroistoku.
25,11 m2
4,64 m2
11,11 m2
9,84 m2
7,80 m2
5,36 m2
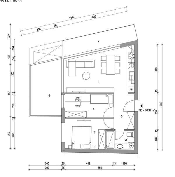
70,37 m2
Trosobni stan S3 neto korisne površine 70,37 koji se nalazi na 2. katu zgrade, a sastoji se od ulaznog hodnika, dnevnog boravka s kuhinjom i blagovaonicom, dvije spavaće sobe, kupaonice s WC-om, natkrivenog balkona i natkrivene terase. Orijentiran je prema sjeverozapadu i jugozapadu.
7,22 m2
4,92 m2
11,62 m2
11,33 m2
39,01 m2
11,37 m2
2,81 m2
10,58 m2
98,86 m2
Četverosobni stan S4 neto korisne površine 98,86 m2 koji se nalazi na 2. katu zgrade, a sastoji se od ulaznog hodnika, dnevnog boravka s kuhinjom i blagovaonicom, tri spavaće sobe, dvije kupaonice s WC-om i natkrivenog balkona. Orijentiran je prema sjeverozapadu i sjeveroistoku.
Dizajnerski uređene kupaonice s uključenim sanitarijama i namještajem, uz mogućnost odabira mikrocementa umjesto parketa na podovima stana.
Usto kupcima stana nudimo i uslugu dizajniranja interijera u ostatku stana.
Ovaj projekt objedinjuje vrhunske tehničke standarde s pažljivo odabranom lokacijom. Izdvajamo ključne značajke koje osiguravaju visoku kvalitetu života i udobnost stanovanja.
Armirano-betonska nosiva konstrukcija pruža vrhunsku protupotresnu zaštitu.
Protuprovalna i protupožarna ulazna vrata u stanove.
Višeslojni hrastov parket, keramika najviše klase, te visokokvalitetna ALU stolarija s trostrukim IZO staklom i komarnicima.
Podno grijanje preko dizalica topline zrak-voda koje griju i potrošnu toplu vodu.
Sve sobe u stanu su klimatizirane dok su vanjske jedinice na krovu zgrade.
Stubište i bešumno dizalo vode od prizemlja do 2. kata.
Stropovi visine 3 metra pružaju dodatni osjećaj prostranosti i luksuza u svakom stanu.
U dvorištu zgrade nalazi se moderno opremljeno dječje igralište, idealno za sigurno i zabavno vrijeme na otvorenom.





















Voditelj prodaje
Ulica Stjepana Fabijančića Jape 72, Velika Gorica
© All Copyright 2024 by Avangardstan